EGEDESONSÖZ - Buca'da uzun süredir kentsel dönüşüm kapsamına alınmaya çalışılan Çaldıran Mahallesi'nin 1/5000'lik ölçekli nazım imar planları askıya çıktı.
İzmir Büyükşehir Belediyesi tarafından yayınlanan imar planları 12 hektarlık alanı kapsıyor.
Atatürk Maskını da içine alan mahallede çoğunlukla bir ve iki katlı binalar yer alırken toplamda 636 yapı bulunuyor ve bu binalardan sadece 11'i ruhsat sahibi.
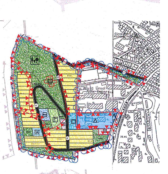
Halihazırdaki imar planlarında 'ıslah edilecek' kararı bulunan bölgenin bir kısmı heyelan riski barındırıyor. Yeni planlara göre mahallenin kuzeyinde rekreasyon alanı ayrılırken risk açısından düşük bölgeler ise 'kentsel yerleşik alan' olarak belirlendi.

Planların onanması halinde Yeşildere Caddesi, Homeros Bulvarı ve Gürçeşme Caddesi arasında kalan yüksek yoğunluklu yapılar yapılabilecek. Ayrıca mahallede belediye hizmet alanı, sağlık alanı, spor alanı ve ibadet alanları da ayrıldı. Planlama alanı ayrıca Uluslararası Bahçe Bitkileri EXPO'sunun (Botanik EXPO) yapılması planlanan ve yeşil dönüşüm kapsamına alınan Yeşildere'ye de çok yakın bir mesafede yer alıyor.
Plan açıklamasında şu ifadeler yer aldı:
Nazım İmar Planı Revizyonu kapsamında mevcut durum analizleri bütünleştirilerek plan kararları oluşturulmuştur. Yürürlükteki 25.000 ölçekli Çevre Düzeni Planı, yürürlükteki 1/5000 ölçekli Nazım İmar Planı ve Mevcut yapılaşma dağılımının yanı sıra; plan kararları belirlenirken, eşik analizi, kat analizi, yerleşime uygunluk analizi vb. veriler göz önünde bulundurulmuştur.

Planlamaya konu alanın tamamı yürürlükteki 1/25000 ölçekli Çevre Düzeni Planında 'Kentsel Yerleşik (Meskun)' alan kullanım kararında kalmaktadır. Yürürlükteki 1/5000 ölçekli Nazım Imar Planında 'Islah Edilecek Alan' kullanım kararı, 'YSE (Yol Su Elektrik Kurumu)', 'Lise Alanı' kullanım kararları bulunmaktadır.
Plan çalışmaları sırasında üst ölçekli plan kararı doğrultusunda gelen 'Kentsel Yerleşik Alan' kullanım kararı göz önünde bulundurulmuştur. Ancak alan bütünü analizlerinde yapılaşmaya uygun bölgeler belirlenirken; yapılmış olan analizler neticesinde alanın kuzey bölgesi Rekreasyon Alanı kullanım kararı olarak belirlenmiştir. Ayrıca jeolojik ve jeoteknik etüt raporlarının değerlendirme bölümleri ve önlemli alan sınırları incelenerek 'Gelişme Konut Alanı' yapılaşma riskinin en düşük olduğu bölgelerde belirlenmiştir.

Planlama alanında TÜIK 2019 yılı verilerine göre mevcut nüfus 3379 kişidir. Söz konusu alanda; mevcut durum, yapılaşma düzeni ve islah imar planı doğrultusunda hesaplanmış olan inşaat alanı verileri ile nüfusun yaklaşık olarak 4103 kişi olduğu tespit edilmiştir. Bu doğrultuda 1/5000 ölçekli Nazım Imar Planı Revizyonunda 'Gelişme Konut Alanı' kullanım kararları belirlenirken, brüt alanı yaklaşık olarak 12 hektar olan bölgede 341 kişi/ha değerleri doğrultusunda gelişme konut alanları 'Yüksek Yoğunluk' olarak düzenlenmiştir.





