Metehan UD / EGEDESONSÖZ - İzmir’in Çeşme ilçesi Musalla Mahallesi’nde 6306 sayılı Afet Riski Altındaki Alanların Dönüştürülmesi Hakkında Kanun kapsamında “Rezerv Yapı Alanı” ilan edilen bölgeye ilişkin imar planları askıya çıkarıldı. Yaklaşık 6,65 hektarlık alanı kapsayan planlama sahası; 419 ada 16, 17, 18, 23, 24, 25, 79 ve 80 numaralı parseller ile bir kısım tescil harici alanı içeriyor.
Planlama alanının tamamı, Çevre, Şehircilik ve İklim Değişikliği Bakanlığı’nın 18 Aralık 2023 tarihli ve 8253007 sayılı Bakanlık Makamı Olur’u ile rezerv yapı alanı olarak ilan edilmişti. Mevcut durumda parsellerin büyük ölçüde boş ve kullanılmadığı, alanın herhangi bir sit alanı sınırı içerisinde yer almadığı belirtildi.
EMLAK KONUT GYO MÜLKİYETİNDE
Plan açıklama raporlarına göre, toplam 66 bin 517,48 metrekare büyüklüğündeki planlama alanının 63 bin 587 metrekaresi parsel alanı, 2 bin 930,48 metrekaresi ise tescil harici alanlardan oluşuyor. Planlama alanında yer alan 8 parselin tamamının mülkiyetinin Emlak Konut Gayrimenkul Yatırım Ortaklığı A.Ş.’ye ait olması dikkat çekti. Parsel büyüklükleri 692 metrekare ile 15 bin 964 metrekare arasında değişiyor.
Ulaşım açısından değerlendirildiğinde planlama alanı; İzmir il merkezi ile Çeşme’yi birbirine bağlayan İzmir-Çeşme Otoyolu (O-32) ve İzmir-Çeşme Devlet Karayolu (D-300) gibi ana ulaşım akslarına yakın konumda yer alıyor. Alanın yaklaşık 5,1 kilometre kuzeyinde Çeşme Alper Çizgenakat Devlet Hastanesi, 2,5 kilometre kuzeyinde Çeşme Otobüs Terminali, 3,4 kilometre kuzeyinde Çeşme Marina, 12,9 kilometre güneydoğusunda ise Alaçatı Marina bulunuyor.

ÜST ÖLÇEKLİ PLANLARDA “YEŞİL”
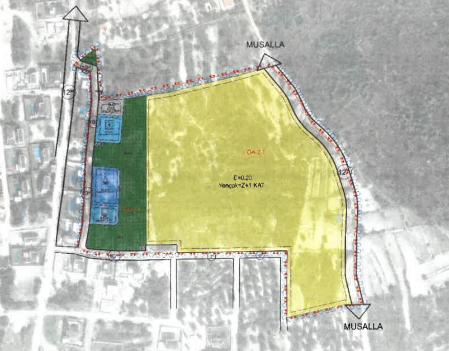
Planlama alanı, İzmir-Manisa Planlama Bölgesi 1/25.000 ölçekli Nazım İmar Planı’nda yer alıyor. Bu planda, 419 ada 25 numaralı parsel “Mutlak-Fundalık Alan”, diğer parseller ise “Ağaçlandırılacak Alan” olarak tanımlanmıştı. Parseller ise tapu kayıtlarında 'tarla' olarak kayıtlı.
Alanın batısında ise Seyrek Yoğun Gelişme Konut Alanı (1–50 kişi/hektar) fonksiyonu bulunuyordu.
Üst ölçekli planlarda kırsal nitelikli gelişme konut alanları için emsal değerleri; bazı alanlarda emsal 0,50, bazı alanlarda emsal 0,40 ve yapı yüksekliği en fazla 2 kat olarak belirlendi.
BEŞ BİNLİK VE BİNLİK PLAN YOK
Plan raporlarında yer alan bilgilere göre, planlama alanına ilişkin daha önce onaylanmış bir 1/5000 ölçekli Nazım İmar Planı ve 1/1000 ölçekli Uygulama İmar Planı bulunmuyordu. Çeşme Belediyesi ile İzmir Büyükşehir Belediyesi’nden alınan kurum görüşlerinde de, parseller için alt ölçekli imar planlarının mevcut olmadığı ifade edilmişti.
Rezerv yapı alanı ilanının ardından hazırlanan çalışmayla birlikte ilk kez 1/25.000 ölçekli Nazım İmar Planı Değişikliği, 1/5.000 ölçekli Nazım İmar Planı ve 1/1.000 ölçekli Uygulama İmar Planı eş zamanlı olarak hazırlanarak bakanlık onayına sunuldu.
ALANIN YÜZDE 70’İ KONUT, YÜZDE 30’U DONATI
Hazırlanan imar planlarında alan dağılımı da netleşti. Buna göre, planlama alanının yüzde 70’ine denk gelen 46 bin 562 metrekarelik bölüm “Gelişme Konut Alanı” olarak belirlendi. Bu alanda emsal 0,20, yapı yüksekliği ise zemin artı 1 kat (Z+1) olarak planlandı. Konut alanı için öngörülen toplam inşaat alanı 9 bin 312 metrekare olurken, planlanan nüfus 233 kişi olarak hesaplandı. Nüfus hesabında kişi başına 40 metrekare alan kriteri esas alındı.
Planlama alanının yüzde 30’unu oluşturan 19 bin 955 metrekarelik bölüm ise donatı alanlarına ayrıldı. Bu kapsamda; 1.500 metrekare anaokulu, 750 metrekare aile sağlığı merkezi, 1.000 metrekare sosyal tesis alanı, 7.773 metrekare park alanı, 551 metrekare teknik altyapı alanı, 93 metrekare trafo alanı ve 8.288 metrekare yol alanı planlandı.
Bakanlık tarafından onaylanan 1/25.000 ölçekli Nazım İmar Planı Değişikliği, 1/5.000 ölçekli Nazım İmar Planı ve 1/1.000 ölçekli Uygulama İmar Planı, 12–26 Ocak 2026 tarihleri arasında İzmir Valiliği Çevre, Şehircilik ve İklim Değişikliği İl Müdürlüğü’nde tarafından 15 gün süreyle askıya çıkarıldı. Askı süresi boyunca vatandaşlar planları inceleyerek yasal süresi içinde itirazda bulunabilecek.




